101121b

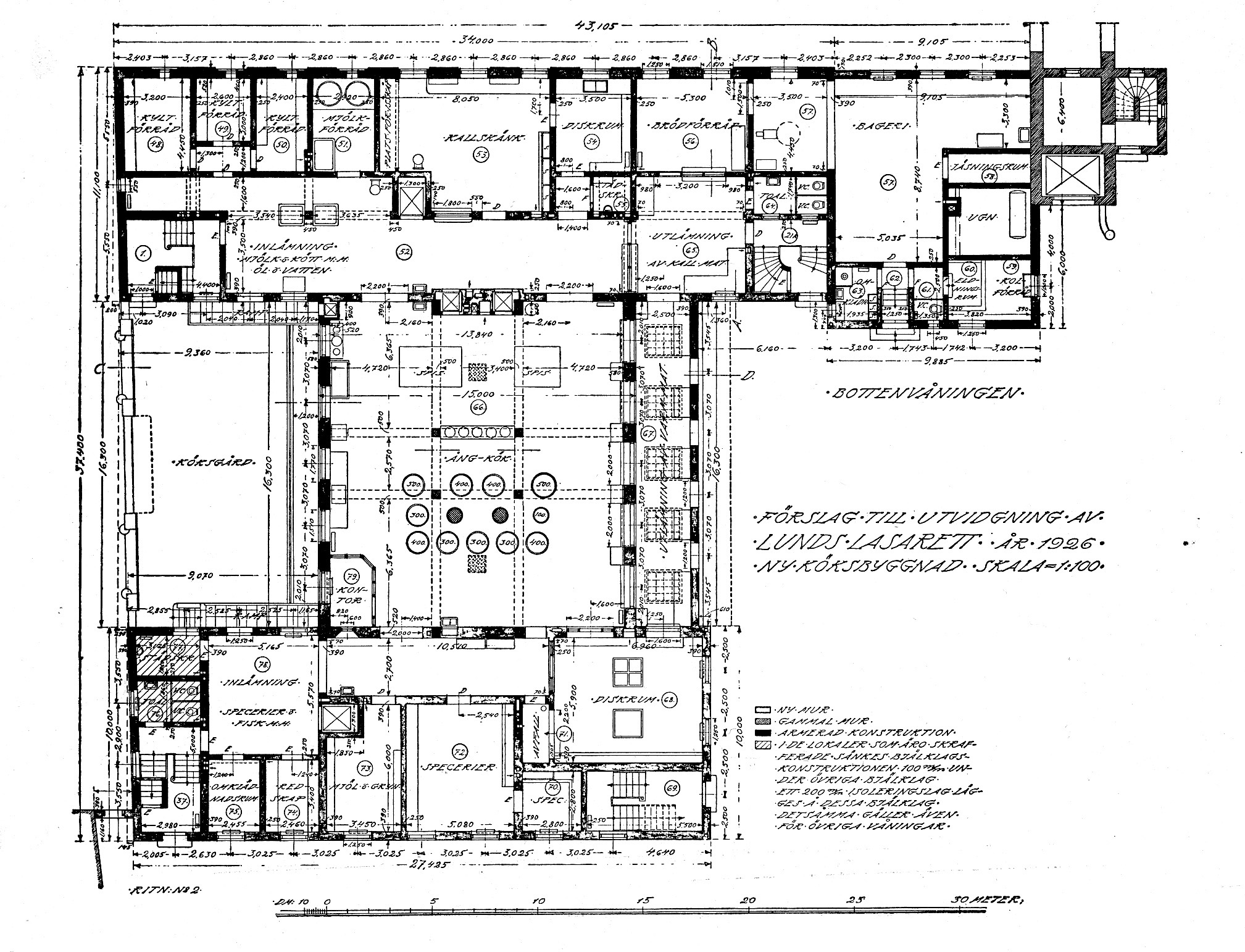
Förslag till ny köksbyggnad 1926, bottenvåningen, Lunds Lasarett

Kökets bottenvåning från år 1929Förslag till ny köksbyggnad, bottenvåningen, Lasarettet i Lund 1926. Köket stod färdigt 1929.

Efter H. Nilsson, "Utspisningen vid Lunds lasarett under åren 1768 -1933".

Klicka på bilden för att se den i högre upplösning (2418 x 1683 pixlar, 492 KB).

Bild nr. 100511-006

. Klicka här för att skicka ett e-brev till Sällskapets Internetansvarige när du vill komplettera informationen om någon bild. Ange bildnumret ovan!

Bakåt Förra Nästa Nästa