101121b

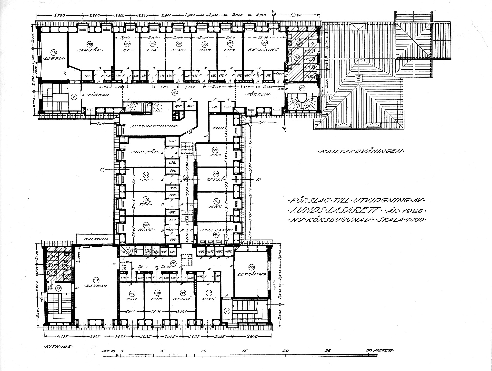
Förslag till ny köksbyggnad 1926, mansardvåningen, Lunds Lasarett

Lasarettsköket från 1929, mansardvåningen, Lasarettet i LundFörslag till ny köksbyggnad, mansardvåningen, Lasarettet i Lund 1926.

Klicka på bilden för att se den i högre upplösning (2017 x 1524 pixlar, 733 KB).

Bild nr. 100504-017

. Klicka här för att skicka ett e-brev till Sällskapets Internetansvarige när du vill komplettera informationen om någon bild. Ange bildnumret ovan!

Bakåt Förra Nästa Nästa