101121b

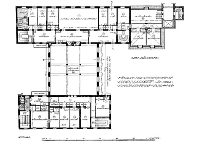
Förslag till ny köksbyggnad 1926, 2:a våningen, Lunds Lasarett

Köket från 1929, 2: vån, Lasarettet i LundFörslag till ny köksbyggnad, 2:a vån., Lasarettet i Lund 1926.

Klicka på bilden för att se den i högre upplösning (2116 x 1513 pixlar, 576 KB).

Bild nr. 100504-017

. Klicka här för att skicka ett e-brev till Sällskapets Internetansvarige när du vill komplettera informationen om någon bild. Ange bildnumret ovan!

Bakåt Förra Nästa Nästa