101121b

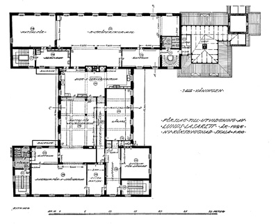
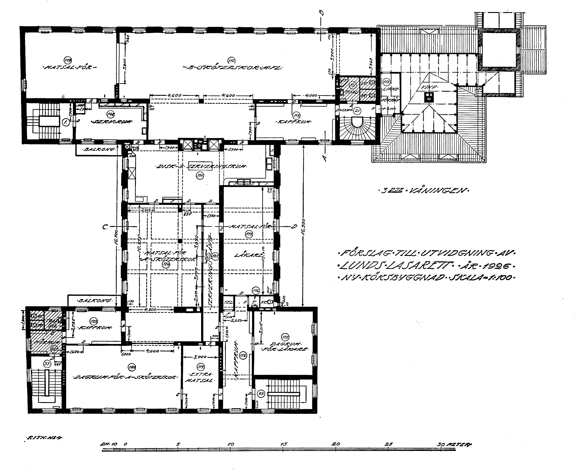
Förslag till ny köksbyggnad 1926, 3:e våningen, Lunds Lasarett

KurhKöket från 1929, 3 vån, Lasarettet i Lund Förslag till ny köksbyggnad, 3:e vån., Lasarettet i Lund 1926.

Klicka på bilden för att se den i högre upplösning (1887 x 1524 pixlar, 546 KB).

Bild nr. 100504-016

. Klicka här för att skicka ett e-brev till Sällskapets Internetansvarige när du vill komplettera informationen om någon bild. Ange bildnumret ovan!

Bakåt Förra Nästa Nästa